$1,429,000
1,502
SQ FT
$951
SQ/FT
716 Seacliff Drive
@ Oakdale Dr - 47 - Seacliff, Aptos
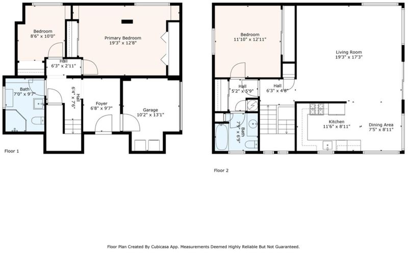
- 3 Bed
- 2 Bath
- 5 Park
- 1,502 sqft
- APTOS
-
Coastal retreat in the heart of Aptos. Charming bungalow offers the perfect blend of beachside serenity and modern comfort. Enjoy breathtaking ocean views from the front deck, an open-concept living space filled with natural light, and a bright kitchen with a cozy dining nook. The flexible layout features one bedroom upstairs and two downstairs, ideal for guests, a home office, or multi-generational living. The fully fenced backyard includes a hot tub, outdoor shower, and generous storage, making it just as functional as it is inviting. Just minutes from Seacliff State Beach. With the beach, cafes, parks, and local favorites all just moments away, this home places you in one of Aptos most sought-after neighborhoods. Whether you're looking for a weekend getaway or a full-time home by the sea, this coastal home delivers an unbeatable location and lifestyle. Don't miss your chance to see it.
- Days on Market
- 75 days
- Current Status
- Active
- Original Price
- $1,500,000
- List Price
- $1,429,000
- On Market Date
- Jun 13, 2025
- Property Type
- Single Family Home
- Area
- 47 - Seacliff
- Zip Code
- 95003
- MLS ID
- ML82010472
- APN
- 038-163-20-000
- Year Built
- 1970
- Stories in Building
- Unavailable
- Possession
- Unavailable
- Data Source
- MLSL
- Origin MLS System
- MLSListings, Inc.
Twin Lakes Christian School
Private K-8 Elementary, Religious, Coed
Students: 298 Distance: 0.6mi
Mar Vista Elementary School
Public K-6 Elementary
Students: 444 Distance: 0.7mi
Delta Charter School
Charter 9-12 Secondary
Students: 123 Distance: 0.8mi
Santa Cruz Montessori School
Private PK-9 Montessori, Elementary, Coed
Students: 275 Distance: 1.0mi
Kimberly Hardin Art Foundation & School
Private PK-12 Combined Elementary And Secondary, Coed
Students: 163 Distance: 1.1mi
New Brighton Middle School
Public 6-8 Middle
Students: 704 Distance: 1.4mi
- Bed
- 3
- Bath
- 2
- Full on Ground Floor
- Parking
- 5
- On Street
- SQ FT
- 1,502
- SQ FT Source
- Unavailable
- Lot SQ FT
- 3,659.0
- Lot Acres
- 0.083999 Acres
- Kitchen
- Garbage Disposal, Refrigerator
- Cooling
- None
- Dining Room
- Dining "L"
- Disclosures
- Flood Zone - See Report
- Family Room
- No Family Room
- Flooring
- Wood
- Foundation
- Concrete Slab
- Heating
- Wall Furnace
- Laundry
- Electricity Hookup (220V), Washer / Dryer, In Utility Room
- Views
- Neighborhood, Ocean
- Architectural Style
- Bungalow
- Fee
- Unavailable
MLS and other Information regarding properties for sale as shown in Theo have been obtained from various sources such as sellers, public records, agents and other third parties. This information may relate to the condition of the property, permitted or unpermitted uses, zoning, square footage, lot size/acreage or other matters affecting value or desirability. Unless otherwise indicated in writing, neither brokers, agents nor Theo have verified, or will verify, such information. If any such information is important to buyer in determining whether to buy, the price to pay or intended use of the property, buyer is urged to conduct their own investigation with qualified professionals, satisfy themselves with respect to that information, and to rely solely on the results of that investigation.
School data provided by GreatSchools. School service boundaries are intended to be used as reference only. To verify enrollment eligibility for a property, contact the school directly.























