$826,035
3,255
SQ FT
$254
SQ/FT
3271 Nightfall Drive
@ Nightfall Drive - 20502 - Manteca Central, Manteca
- 5 Bed
- 3 Bath
- 3 Park
- 3,255 sqft
- MANTECA
-
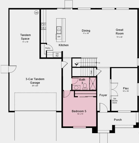
What's Special: Larger Lot | Flat Lot | Flex Room | 3-Car Tandem Garage | Loft. New Construction - February Completion! Built by Taylor Morrison, America's Most Trusted Homebuilder. Welcome to the Marigold at 3271 Nightfall Drive in Poppy at Oakwood Trails! Step through the front porch into a bright foyer that opens to a flexible room. The open-concept layout brings together a spacious great room, dining area, and gourmet kitchen. A secondary bedroom and full bath on the main level add convenience for guests. Upstairs, you'll find a generous loft, three secondary bedrooms, a shared bath, laundry room, and a serene primary suite complete with a luxurious bath and walk-in closet. Life at Oakwood Trails is all about connection and outdoor fun! Enjoy scenic views and recreational activities less than a mile away at the San Joaquin River. Explore Wildflower and Oakview Parks or take a stroll along the multi-use path that winds through the community. Challenge friends at the soccer field, baseball diamond, or basketball court, and discover play structures, picnic spots, and wide-open green spaces designed for relaxation and fun. Additional Highlights Include: Downstairs bedroom in place of study, full bathroom in place of powder room, 8' interior doors and 9' ceilings. MLS#ML82024026
- Days on Market
- 77 days
- Current Status
- Active
- Original Price
- $820,563
- List Price
- $826,035
- On Market Date
- Oct 7, 2025
- Property Type
- Single Family Home
- Area
- 20502 - Manteca Central
- Zip Code
- 95337
- MLS ID
- ML82024026
- APN
- 268-230-48
- Year Built
- 2025
- Stories in Building
- 2
- Possession
- COE
- Data Source
- MLSL
- Origin MLS System
- MLSListings, Inc.
Sierra High School
Public 9-12 Secondary
Students: 1377 Distance: 2.1mi
Brock Elliott Elementary School
Public K-8 Elementary
Students: 849 Distance: 2.1mi
Mossdale Elementary School
Public K-8 Elementary
Students: 1022 Distance: 2.2mi
Delta Charter Online No.2
Charter K-12
Students: 113 Distance: 2.3mi
Delta Keys Charter #2
Charter K-12
Students: 201 Distance: 2.3mi
Free2bee School
Private K-12 Coed
Students: NA Distance: 2.4mi
- Bed
- 5
- Bath
- 3
- Double Sinks, Shower over Tub - 1, Tile
- Parking
- 3
- Attached Garage, Tandem Parking
- SQ FT
- 3,255
- SQ FT Source
- Unavailable
- Lot SQ FT
- 7,138.0
- Lot Acres
- 0.163866 Acres
- Kitchen
- Countertop - Quartz, Dishwasher, Island with Sink, Microwave, Oven Range - Electric, Pantry
- Cooling
- Central AC
- Dining Room
- Breakfast Bar, Dining Area, Dining Area in Living Room
- Disclosures
- None
- Family Room
- Kitchen / Family Room Combo
- Flooring
- Carpet, Tile, Vinyl / Linoleum
- Foundation
- Concrete Slab
- Heating
- Central Forced Air
- Laundry
- Electricity Hookup (220V), Inside, Upper Floor
- Possession
- COE
- Architectural Style
- Other
- Fee
- Unavailable
MLS and other Information regarding properties for sale as shown in Theo have been obtained from various sources such as sellers, public records, agents and other third parties. This information may relate to the condition of the property, permitted or unpermitted uses, zoning, square footage, lot size/acreage or other matters affecting value or desirability. Unless otherwise indicated in writing, neither brokers, agents nor Theo have verified, or will verify, such information. If any such information is important to buyer in determining whether to buy, the price to pay or intended use of the property, buyer is urged to conduct their own investigation with qualified professionals, satisfy themselves with respect to that information, and to rely solely on the results of that investigation.
School data provided by GreatSchools. School service boundaries are intended to be used as reference only. To verify enrollment eligibility for a property, contact the school directly.





