$585,000
1,650
SQ FT
$355
SQ/FT
625 Cypress Street
@ Mayfair Dr - Dixon
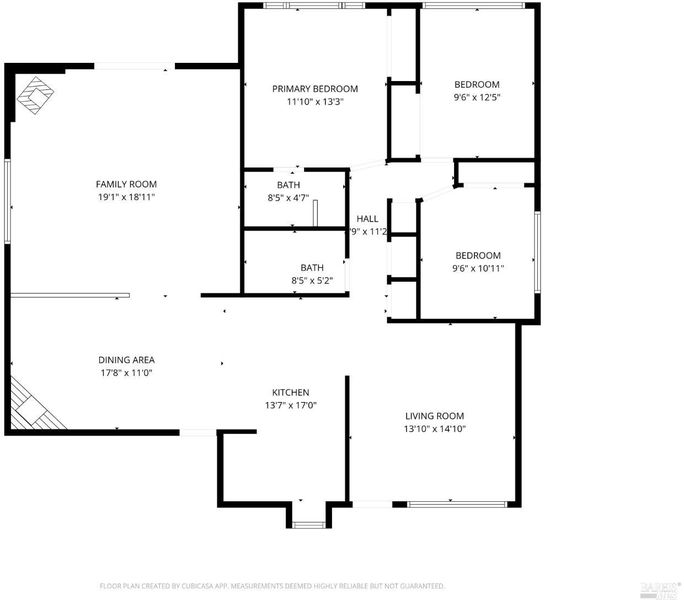
- 3 Bed
- 2 Bath
- 2 Park
- 1,650 sqft
- Dixon
-
Welcome to this charming Dixon home, designed for year-round entertaining! The beautifully updated kitchen features granite tile counters, a custom backsplash, and under-cabinet lighting. The dining area flows seamlessly into a spacious family room complete with a built-in bar. Step outside to an impressive backyard retreat with a covered patio, gas fireplace, and a fully equipped outdoor kitchen with a tankless water heater. Additional highlights include newer HVAC, paid solar, and an Evo water system. Don't miss your chance to make this wonderful home yours!
- Days on Market
- 21 days
- Current Status
- Active
- Original Price
- $585,000
- List Price
- $585,000
- On Market Date
- Dec 1, 2025
- Property Type
- Single Family Residence
- Area
- Dixon
- Zip Code
- 95620
- MLS ID
- 325100841
- APN
- 0114-143-100
- Year Built
- 1972
- Stories in Building
- Unavailable
- Possession
- Close Of Escrow
- Data Source
- BAREIS
- Origin MLS System
C. A. Jacobs Intermediate School
Public 7-8 Middle, Yr Round
Students: 731 Distance: 0.5mi
Dixon Montessori Charter
Charter K-8
Students: 414 Distance: 0.6mi
Neighborhood Christian School
Private K-8 Elementary, Religious, Coed
Students: 97 Distance: 0.6mi
Dixon Community Day School
Public 7-12 Yr Round
Students: 12 Distance: 0.8mi
Tremont Elementary School
Public K-6 Elementary, Yr Round
Students: 456 Distance: 0.8mi
Maine Prairie High (Continuation) School
Public 10-12 Continuation, Yr Round
Students: 83 Distance: 0.9mi
- Bed
- 3
- Bath
- 2
- Parking
- 2
- Attached
- SQ FT
- 1,650
- SQ FT Source
- Assessor Auto-Fill
- Lot SQ FT
- 5,663.0
- Lot Acres
- 0.13 Acres
- Kitchen
- Kitchen/Family Combo
- Cooling
- Central
- Fire Place
- Dining Room, Family Room, Wood Burning, Wood Stove
- Heating
- Central
- Laundry
- In Garage
- Main Level
- Bedroom(s), Dining Room, Family Room, Full Bath(s), Garage, Living Room, Primary Bedroom
- Possession
- Close Of Escrow
- Fee
- $0
MLS and other Information regarding properties for sale as shown in Theo have been obtained from various sources such as sellers, public records, agents and other third parties. This information may relate to the condition of the property, permitted or unpermitted uses, zoning, square footage, lot size/acreage or other matters affecting value or desirability. Unless otherwise indicated in writing, neither brokers, agents nor Theo have verified, or will verify, such information. If any such information is important to buyer in determining whether to buy, the price to pay or intended use of the property, buyer is urged to conduct their own investigation with qualified professionals, satisfy themselves with respect to that information, and to rely solely on the results of that investigation.
School data provided by GreatSchools. School service boundaries are intended to be used as reference only. To verify enrollment eligibility for a property, contact the school directly.














































