$899,950
740
SQ FT
$1,216
SQ/FT
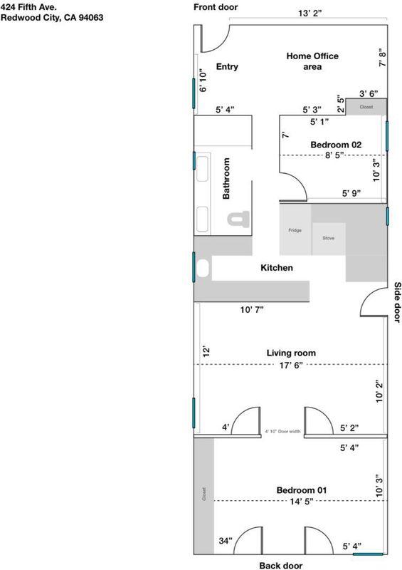
424 5th Avenue
@ Middlefield - 330 - Dumbarton Etc., Redwood City
- 2 Bed
- 1 Bath
- 1 Park
- 740 sqft
- REDWOOD CITY
-
Welcome to 424 Fifth Ave, a beautifully remodeled jewel just steps from vibrant downtown Redwood City.** This charming 2-bedroom home has been thoughtfully updated with permitted renovations, including upgraded electrical, a newer roof, and modern interior finishes throughout. Inside, youll find one of the coziest and most comfortable 1,000 sq. ft. layouts youll ever experience. The light-filled living spaces flow effortlessly, and the kitchen feels surprisingly spacious, perfectly designed for cooking, gathering, and moving around with ease. Every corner of this home feels warm, welcoming, and wonderfully livable. Step outside to enjoy a generous yard ideal for relaxing, entertaining, or future expansion possibilities. And with Caltrain, dining, shopping, parks, and the energy of downtown just moments away, this location offers unmatched walkability and convenience. A rare opportunity to own a truly special home in one of the Peninsulas most desirable neighborhoods.**
- Days on Market
- 17 days
- Current Status
- Active
- Original Price
- $899,950
- List Price
- $899,950
- On Market Date
- Dec 4, 2025
- Property Type
- Single Family Home
- Area
- 330 - Dumbarton Etc.
- Zip Code
- 94063
- MLS ID
- ML82028298
- APN
- 060-072-440
- Year Built
- 1959
- Stories in Building
- 1
- Possession
- Unavailable
- Data Source
- MLSL
- Origin MLS System
- MLSListings, Inc.
Wherry Academy
Private K-12 Combined Elementary And Secondary, Coed
Students: 16 Distance: 0.1mi
Seaport Academy
Private K-12
Students: 7 Distance: 0.1mi
Everest Public High
Charter 9-12
Students: 407 Distance: 0.1mi
Sequoia District Adult Education
Public n/a Adult Education
Students: 2 Distance: 0.1mi
Garfield Elementary School
Public K-8 Elementary
Students: 533 Distance: 0.3mi
Synapse School
Private K-8 Core Knowledge
Students: 265 Distance: 0.3mi
- Bed
- 2
- Bath
- 1
- Parking
- 1
- Carport
- SQ FT
- 740
- SQ FT Source
- Unavailable
- Lot SQ FT
- 2,999.0
- Lot Acres
- 0.068848 Acres
- Cooling
- Multi-Zone, Other
- Dining Room
- Breakfast Bar, Dining Area in Living Room
- Disclosures
- NHDS Report
- Family Room
- Separate Family Room
- Foundation
- Concrete Perimeter, Raised
- Heating
- Heat Pump
- Fee
- Unavailable
MLS and other Information regarding properties for sale as shown in Theo have been obtained from various sources such as sellers, public records, agents and other third parties. This information may relate to the condition of the property, permitted or unpermitted uses, zoning, square footage, lot size/acreage or other matters affecting value or desirability. Unless otherwise indicated in writing, neither brokers, agents nor Theo have verified, or will verify, such information. If any such information is important to buyer in determining whether to buy, the price to pay or intended use of the property, buyer is urged to conduct their own investigation with qualified professionals, satisfy themselves with respect to that information, and to rely solely on the results of that investigation.
School data provided by GreatSchools. School service boundaries are intended to be used as reference only. To verify enrollment eligibility for a property, contact the school directly.














































