$588,888
950
SQ FT
$620
SQ/FT
419 Velasco Drive
@ Entrada Cedros - 12 - Blossom Valley, San Jose
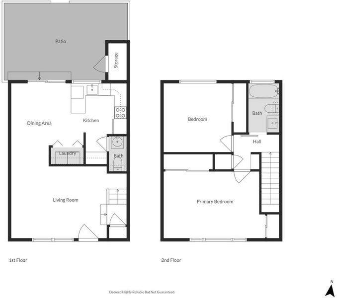
- 2 Bed
- 2 (1/1) Bath
- 2 Park
- 950 sqft
- SAN JOSE
-
-
Sat Dec 20, 1:00 pm - 4:00 pm
Come check out this excellent home!
Beautifully Condo in the heart of Blossom Valley with laminate flooring throughout, carpeted stairs, and ample storage space. Kitchen includes stainless steel appliances, granite countertops, white shaker cabinets and a built-in wine fridge. Stylish Full bathroom upstairs includes a sliding barn door entrance, decorator tiled shower and vanity with updated light fixtures. Primary bedroom has dual closets. Features Recessed lighting, Inside laundry and central air. Private Back patio is perfect for grilling in the summer and includes a shed for extra storage. Close proximity to schools, church, and vibrant Snell Blossom hill shopping and dining. Easy access to 85 and light rail for convenient commuting.
- Days on Market
- 8 days
- Current Status
- Active
- Original Price
- $588,888
- List Price
- $588,888
- On Market Date
- Dec 9, 2025
- Property Type
- Condominium
- Area
- 12 - Blossom Valley
- Zip Code
- 95123
- MLS ID
- ML82028640
- APN
- 464-16-023
- Year Built
- 1970
- Stories in Building
- 2
- Possession
- Negotiable
- Data Source
- MLSL
- Origin MLS System
- MLSListings, Inc.
Del Roble Elementary School
Public K-6 Elementary
Students: 556 Distance: 0.3mi
Frost (Earl) Elementary School
Public K-8 Elementary, Independent Study, Gifted Talented
Students: 638 Distance: 0.3mi
Challenger School - Shawnee
Private PK-8 Coed
Students: 347 Distance: 0.8mi
Herman (Leonard) Intermediate School
Public 5-8 Middle
Students: 854 Distance: 0.9mi
Hayes Elementary School
Public K-6 Elementary
Students: 592 Distance: 0.9mi
Gunderson High School
Public 9-12 Secondary
Students: 1093 Distance: 0.9mi
- Bed
- 2
- Bath
- 2 (1/1)
- Granite, Half on Ground Floor, Updated Bath
- Parking
- 2
- Assigned Spaces, Carport, Covered Parking, Guest / Visitor Parking
- SQ FT
- 950
- SQ FT Source
- Unavailable
- Kitchen
- Cooktop - Electric, Countertop - Granite, Dishwasher, Oven Range, Refrigerator, Wine Refrigerator
- Cooling
- Central AC
- Dining Room
- Dining Area
- Disclosures
- NHDS Report
- Family Room
- Separate Family Room
- Flooring
- Carpet, Laminate
- Foundation
- Concrete Slab
- Heating
- Forced Air, Gas
- Laundry
- Inside
- Possession
- Negotiable
- * Fee
- $350
- Name
- Blossom Hill Home Association
- *Fee includes
- Common Area Electricity, Garbage, Management Fee, and Reserves
MLS and other Information regarding properties for sale as shown in Theo have been obtained from various sources such as sellers, public records, agents and other third parties. This information may relate to the condition of the property, permitted or unpermitted uses, zoning, square footage, lot size/acreage or other matters affecting value or desirability. Unless otherwise indicated in writing, neither brokers, agents nor Theo have verified, or will verify, such information. If any such information is important to buyer in determining whether to buy, the price to pay or intended use of the property, buyer is urged to conduct their own investigation with qualified professionals, satisfy themselves with respect to that information, and to rely solely on the results of that investigation.
School data provided by GreatSchools. School service boundaries are intended to be used as reference only. To verify enrollment eligibility for a property, contact the school directly.







































